Team
Year
Site
Commission


Aitor Mtnz. de Zuazo
Iñaki Ciganda
Estibaliz Lpz. de Munain
Blanca San Vicente
2012
Izurza (Bizkaia)
Izurza´s City Hall
SOSTENIBILIDAD AMBIENTAL, ECONÓMICA Y SOCIAL
Sostenibilidad Económica
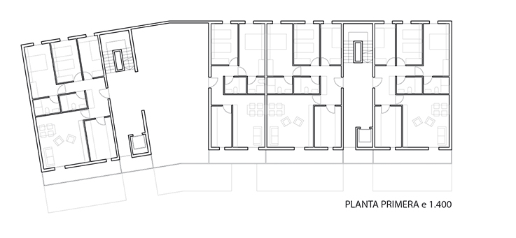
Ahorro económico en costes materiales al distribuir el acceso de 12 viviendas en dos núcleos de comunicaciones principales y acceso a 2 viviendas en planta baja.
Utilización de materiales de distribuciones locales para evitar gastos derivados del transporte.
Sostenibilidad Social
Espacios que potencien la relación entre las personas -TXOKO SOCIAL y HUERTOS / Urbanización alejada de viarios principales -confort ambiental.
Materiales con etiquetado ecológico y reciclables. Libres de productos tóxicos y contaminantes.
Fachada Madera Reciclada / Aislamientos fibras naturales / Aislamientos Proyectados de Celulosa (sin HCFC) en forjados / Vidrio sin SF6 / Bambú en solados interiores.
Control de vertidos Agua / Ahorro consumo
Infiltración de aguas pluviales en el terreno mediante pavimentos permeables / Redes separativas pluviales y fecales / Depósito recogida aguas pluviales. y re-uso para limpieza de zonas comunes y riego.
Optimalización Consumo de energía. Certificado de Eficiencia Energética A
Orientaciones del edificio en razón de los perfiles de las temperaturas.
Zonas de estar al Sur / Fachadas con aislamento continuo sin puentes térmicos / Ventilación natural, cruzada / Caldera de biomasa centralizada y regulciónes individuales.
Fachada aterrazada al sur con filtro vegetal:
-Protección solar y asilamiento térmico: la vegetación obstruye, filtra y refleja la radiación solar,
-Proporciona O²y absorbe CO²
-Mejora el aislamiento acústico.
-Mejora estética y adecuación al entorno.
-Ventalación natural y protección del viento.
Fachada norte con aislamiento reforzado:
- Minima superficie en huecos garantizando las condiciones mínimas de iluminación y ventilación
© by nonon arkitektura





